£300,000

3 bed house for sale in Windsor Avenue (ref: RS0004)

Shortlist

Key Features

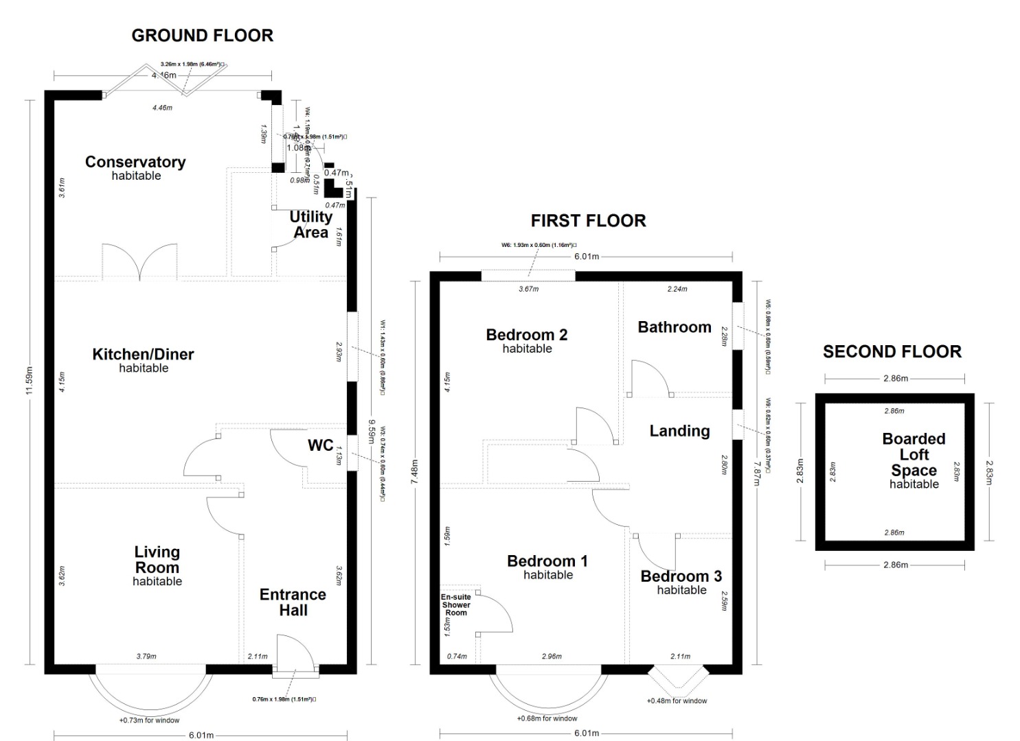
  • Three-bedroom semi-detached home
  • Bright conservatory overlooking the rear garden
  • Spacious lounge and modern kitchen
  • Loft room offering additional flexible space
  • Large, well-maintained rear garden
  • Detached single garage and off-street parking
  • Sought-after location close to schools and amenities

Welcome to 43 Windsor Avenue, a beautifully presented three-bedroom semi-detached home offering generous living space, a stunning garden, and a prime location in this highly sought-after area.


Step through the front door into a light and airy hallway leading to a spacious lounge, ideal for family relaxation, and a modern fitted kitchen with ample units and workspace. A separate dining area opens into a delightful conservatory, providing the perfect spot to enjoy views of the garden all year round.


Upstairs, there are three well-proportioned bedrooms and a stylish family bathroom, finished to a high standard. A converted loft room adds valuable extra space - ideal as a home office, playroom, or guest area.


Outside, the property continues to impress with a large, beautifully maintained rear garden, perfect for entertaining or relaxing in the sun. There is also a detached single garage and off-street parking to the front, offering both convenience and practicality.


 


Located in a quiet residential setting, close to excellent schools, local shops, and transport links, this home offers the perfect balance of peaceful living and accessibility.

Stamp Duty Due

Based on a sale price of £300,000 the total amount of stamp duty payable will be:

*

Last updated: The calculator has been updated following the end of the stamp duty holiday on 1st October 2021.

* This value is based on the standard rate and not applicable to first-time buyers or buy-to-let / second home buyers.

Property Images

3 bed house for sale in Windsor Avenue 1

3 bed house for sale in Windsor Avenue 2

3 bed house for sale in Windsor Avenue 3

3 bed house for sale in Windsor Avenue 4

3 bed house for sale in Windsor Avenue 5

3 bed house for sale in Windsor Avenue 6

3 bed house for sale in Windsor Avenue 7

3 bed house for sale in Windsor Avenue 8

3 bed house for sale in Windsor Avenue 9

3 bed house for sale in Windsor Avenue 10

3 bed house for sale in Windsor Avenue 11

3 bed house for sale in Windsor Avenue 12

3 bed house for sale in Windsor Avenue 13

3 bed house for sale in Windsor Avenue 14

Further Details

  • Status: Available
  • Reference: RS0004

Location

Similar Priced Properties